Alone, Together:
Midtown, Midrise, Mid-Door
... a new type
Midtown, Midrise, Mid-Door
... a new type
Type: Architecture and Urban Design Option Studio
Site: East London, UK
Date: 2021
School: Harvard University, Graduate School of Design
Tutor: Chris C.M. Lee
Site: East London, UK
Date: 2021
School: Harvard University, Graduate School of Design
Tutor: Chris C.M. Lee
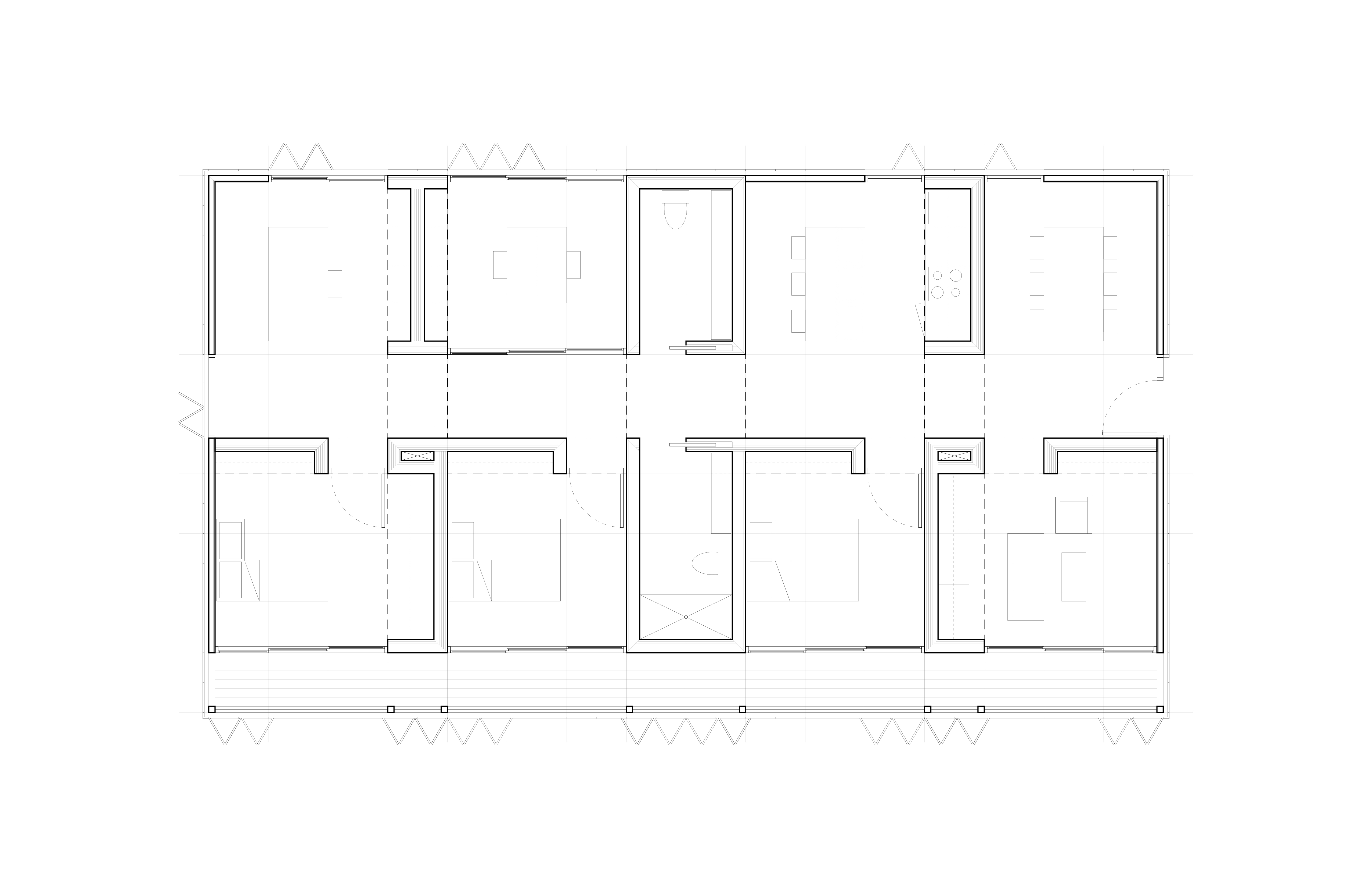
The irreducible experience of living in contemporary housing is defined through the occupation of a single room. As the most fundamental architectural component, rooms are conventionally understood as demarcated, delineated, or enclosed spaces. In light of concerns regarding embodied carbon, as well as a newfound preoccupation regarding ventilation instantiated by the COVID-19 pandemic, this project proposes a new spatial and environmental condition that is somewhat indoors and somewhat outdoors. Through the integration of indoor, mid-door, and outdoor rooms, this project speculates on new scales and housing typologies that might enable residents of the Hackney Wick region of London to live alone, and work alone, together.





































